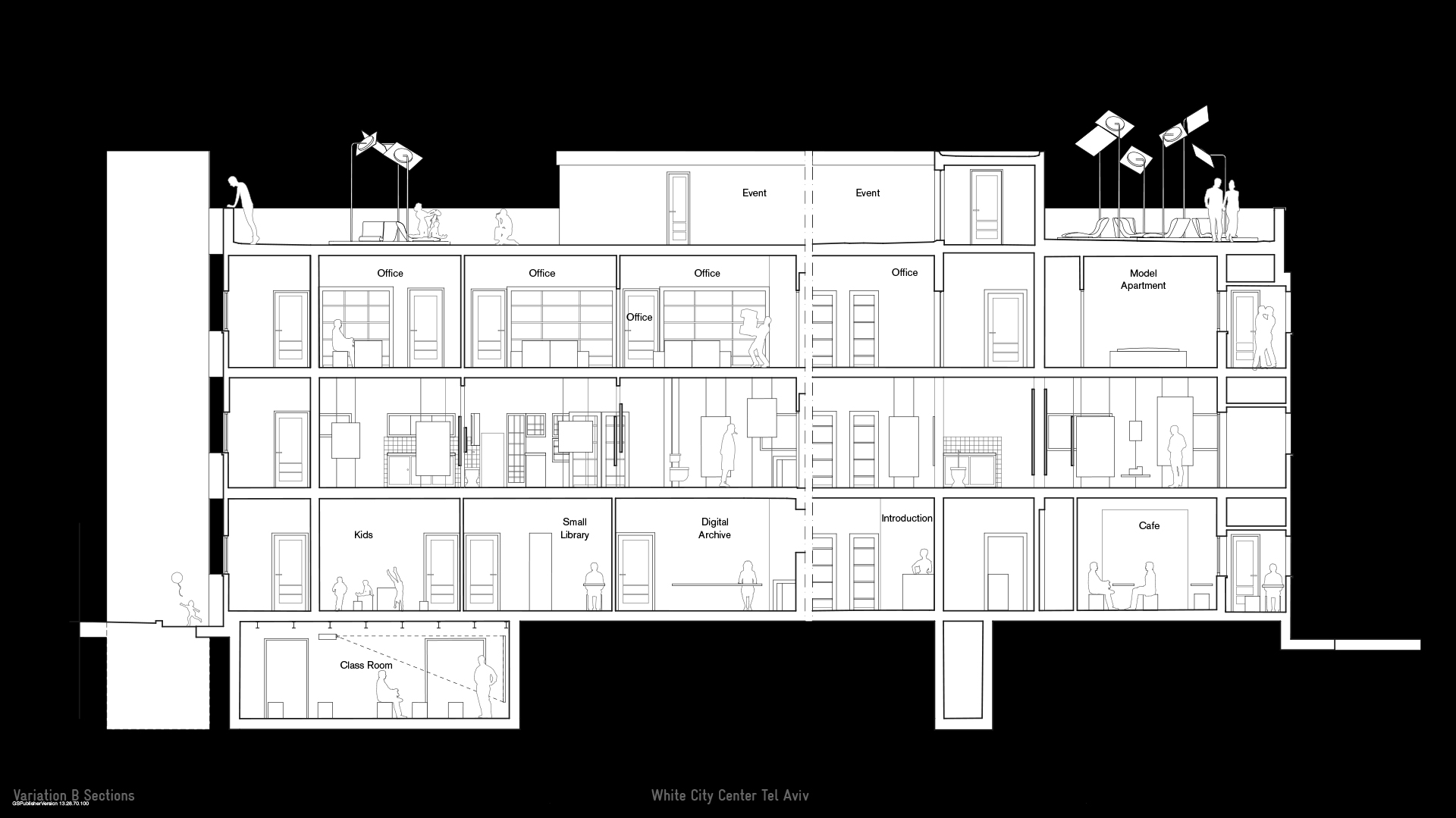
WHITECITYCENTER TELAVIV
2016
Location: Tel Aviv
Client: BBR
Mission: Design Direction and Project Lead for HG Merz
Status: Competition 2nd Prize
︎︎︎Exhibition Design ︎︎︎Listed Building




